- Home
- Community
- Construction Projects
- City Hall Renovation Project
City Hall Renovation Project
De Soto’s City Hall has been part of our community’s story since 1918, first as a schoolhouse and now as the heart of local government. The building’s charm and historic significance remain central to its identity, but after decades of wear—especially on the second floor—it was time for much-needed improvements.
This renovation restores and modernizes the space while honoring its history, ensuring City Hall continues to serve De Soto for generations to come. We can’t wait to welcome you into the next chapter of this historic building.
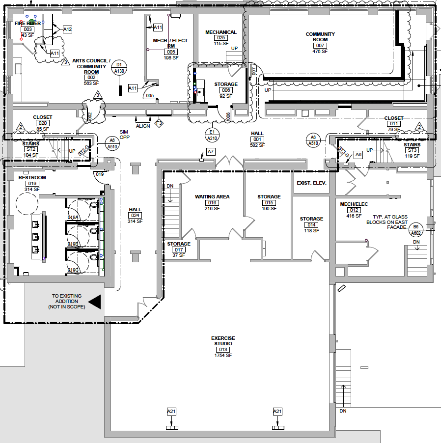
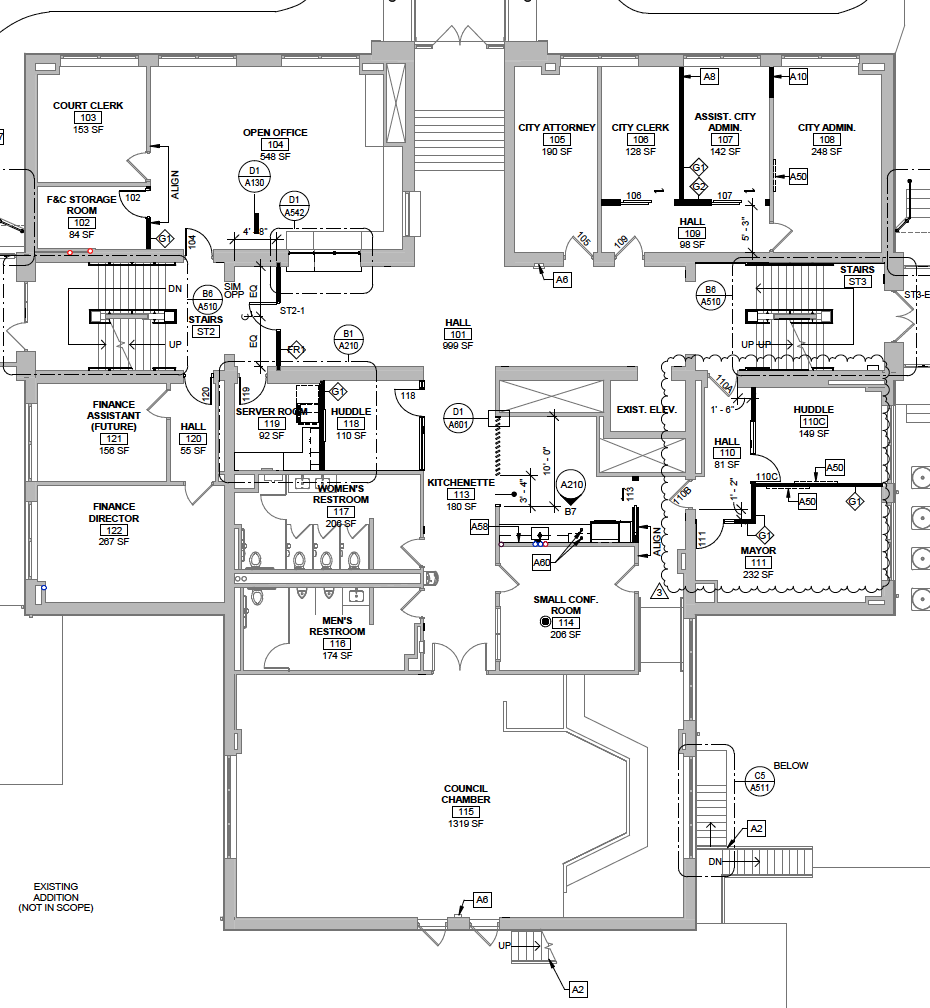
Project Scope
Second Floor:
The renovation’s primary focus is making the second floor usable. Right now, the entire upstairs has basically gone untouched since it was used for school classrooms in the late 90’s.
- Transforming former school classrooms into an added 13 office spaces, 4 meeting rooms, a wellness room, and a kitchenette
- Restoring architectural elements like plaster walls and wood trim
First Floor:
- Enhancing functionality and technology in public and workspaces
- Reconfiguring the layout for better space utilization, including an added kitchenette/breakroom
- Removing the current security walls to give the community more access to city hall - while maintaining security for staff at a department level
- Upgrading meeting rooms with new A/V technology for presentations and video conferencing.
Garden Level (Basement)
- Improving community and operational spaces
- Reconfiguring the basement to add a rentable community room/ Parks & Rec programming space
- Updating the Arts Council/ Community Room with a dropped ceiling and new flooring to match the rest of the Garden level
Building Exterior
- Focused on repairs, preservation, and accessibility
- Improving landscaping around City Hall to complement its historical character.
- Repairing and sealing the building’s exterior to preserve existing structure
- Updating pathways and entrances for enhanced ADA compliance.
Infrastructure Upgrades
- Installing updated HVAC systems for energy efficiency.
- Upgrading electrical systems to meet modern demands.
- Enhancing security systems for improved safety.
Project Info & History
Timeline
- Start Date: February 2025
- Expected Completion: April 2026
- Phased Work Plan:
- Phase 1:
- Second Floor
- Ground Floor (Basement)
- Phase 2: First Floor
- Phase 1:
Budget
At the time of design, the City Hall renovation project is estimated to cost $4.43 million:
- Construction Costs:
- Base Bid: $3,039,000
- A/V Equipment and Devices: $169,000
- Total Construction Costs: $3,208,000
- Project Support Expenses:
- Architectural/Engineering Phase 2 Fees: $490,856
- Low-Voltage Technology and Security Design Services: $9,000
- A/V Design Services: $19,000
- Furnishings and Equipment: $345,050
- Owner’s Construction Contingency (10%): $320,800
- Other Allowances: $40,508
- Total Project Support Expenses: $1,225,214
Funding
Funding comes primarily from a $5 million bond allocated in the 2025 Capital Improvement Budget, ensuring fiscal responsibility while covering all necessary expenses.
- Architect: SFS Architecture
- Engineer: Henderson Engineers
- Contractor: Icon Structures
Documents and Resources
- City Council Meetings
- September 5th, 2023:
- Agenda Item: Consider City Hall Renovation Project
- November 2nd, 2023:
- June 6th, 2024:
- Agenda Item: Discuss City Hall Renovation Design
- Live Stream
- December 19th, 2024:
- September 5th, 2023:
The City Hall renovation respects the building’s origins as a historic schoolhouse, preserving its unique character while modernizing for future needs. Key elements of this preservation include:
- Plaster and wood trim restoration where possible
- Incorporation of chalkboard-themed inspiration into final design
- Architectural elements that compliment original construction (i.e. windows, doors, trim, light fixtures, etc.)
History of the City Hall Building
Early Years as a School
- 1918 – De Soto Rural High School District was established; Governor Arthur Capper laid the cornerstone.
- 1919 – The school opened with a gym, auditorium, and 10 classrooms and was completed at a cost of $60,000. The first class (of four people) graduated that May.
- 1945 – Construction began on an east addition due to population growth from the Sunflower Ordnance Works, but it was halted following the end of World War II.
- 1952 – The east addition was completed -- housing woodworking, metal shop, and commerce classrooms -- at a cost of $70,000 (paid for by the federal government).
- 1955 – A new gymnasium on the west side of the building was added, seating 1,000 people, along with locker rooms, a stage, and classrooms. It was the only school building project built without federal aid, with a cost of approximately $295,000.
- 1955 (Summer) – The entire central part of the original 1918 building was revamped. The original gym was divided horizontally, creating a library in the upper portion and a civil defense shelter below. The auditorium was converted to classrooms and entered from the top floor via doors that had previously accessed the balcony; this area now serves as City Council Chambers. The main floor was remodeled creating locker space, restrooms, and classrooms. Federal Aid once again paid $32,000 of the $45,000 expansion costs.
- 1967 – The cafeteria was added to the south of the main building, which now serves as the De Soto Senior Center and a public meeting space.
- 1968 – The building transitioned from a high school to a junior high (7th-9th grade).
- 1972 – Peak enrollment reached 520 students.
- 1980 – The former school bus parking garage on the northwest corner of the building was converted into vocal and instrumental music rooms. The space now houses the De Soto Chamber of Commerce.
Transition to City Hall
- 1995 – The City of De Soto purchased the building from the school district for $10 to use as an annex to the existing City Hall.
- 1999-2001 – Major renovations created 7,500 sq. ft. of office space on the main/first floor, new floors and ceilings, wall finishes, roof, elevator, windows -- and updated ADA-compliant restrooms. This was paid for through the issuance of general obligation bonds eventually totaling $1,265,000.
- 2001-2002 – A Community Development Block Grant funded additional renovations, including gym improvements, office space conversions, and accessibility upgrades.
- 2006 – The City reopened the former lower-level library for various City-sponsored aerobics and yoga classes for the community.
- 2013 – The City Council granted the De Soto Arts Council permission to move into the lower floor space that was the former home economics classroom.
- 2013 – The City Council granted GreatLife Golf & Fitness the use of the gymnasium stage to utilize as a membership-based workout and fitness facility; the front of the stage has been sectioned off with plexiglass.
-
1952
-
1952
-
1952
-
1920 Auditorium
-
1920 Gym
-
1920 home economics
-
1920 Woodworking shop
-
1922 DRHS 1st Auditorium
-
1942 DRHS gym
-
1942 DRHS gym
-
1953 classes
-
1953 classes